Beschreibung
* 26 % Rabatt ! *
- Wandstaerke: 70 mm
- Massivholz-Dach: 18 mm Nut- und Federbretter
- Massivholz-Fussboden: 18 mm Nut- und Federbretter
- Impraegnierte Fundamentbalken
- Verglasung: Isolierglas
- Sturmsicherung: Innenseite
Fjordholz Ferien- und Freizeithaus Modell St. Gall
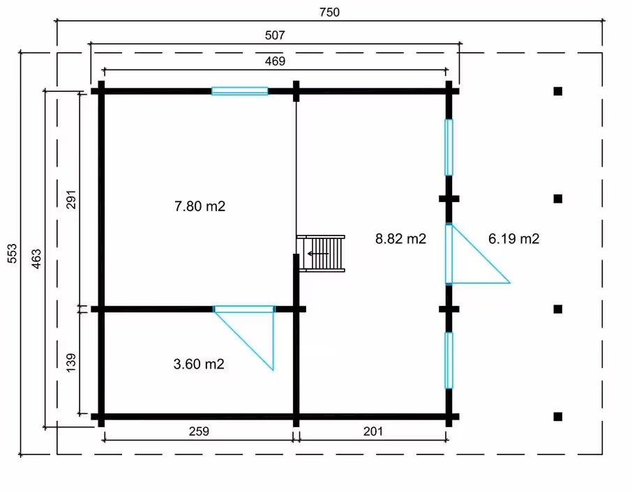
Das Fjordholz Ferien- und Freizeithaus Modell St. Gall bietet mit einer Grundfläche von etwa 35m² viel Platz für Erholung und Freizeitaktivitäten. Die massive Bauweise mit 70 mm starken Wandbohlen aus nordischer Fichte garantiert Stabilität und Langlebigkeit.
Robuste Bauweise für jedes Wetter
Dank der extra starken Dachkonstruktion ist das Haus auch für höhere Schnee- und Windlastzonen geeignet. Das Massivholz-Dach besteht aus 18 mm starken Nut- und Federbrettern, die für zusätzliche Stabilität sorgen. Ebenso robust ist der Massivholz-Fussboden, der ebenfalls aus 18 mm starken Brettern gefertigt ist.
Hochwertige Ausstattung
Die Ausstattung des Hauses umfasst imprägnierte Fundamentbalken als Unterkonstruktion, hochwertige Edelstahl-Türdrücker mit PZ-Schloss und Verglasung aus Isolierglas. Die Türen und Fenster sind mit Gummidichtungen versehen, um eine optimale Isolierung zu gewährleisten. Eine Sturmsicherung auf der Innenseite bietet zusätzlichen Schutz bei extremen Wetterbedingungen.
Individuelle Gestaltungsmöglichkeiten
Ein besonderer Vorteil ist die Möglichkeit, das Gartenhaus in Wunschfarbe zu gestalten oder in anderen Maßen zu produzieren. Auch ein Aufbauservice wird angeboten, um den Aufbau so einfach wie möglich zu gestalten.
Fazit
Das Fjordholz Ferien- und Freizeithaus Modell St. Gall ist die ideale Wahl für alle, die ein robustes, vielseitiges und individuell gestaltbares Gartenhaus suchen. Mit seiner hochwertigen Ausstattung und der Möglichkeit zur individuellen Anpassung bietet es ein hervorragendes Preis-Leistungs-Verhältnis.
Grundriss
