Fjordholz Gartenlounge Modell York 44| Rabatt: 26%|5x3m

8,089.00

✿ Hier mit Rabatt kaufen! ✿

    Beschreibung:

    • Gartenlounge Modell York 44
    • massive 44mm starke Wandbohlen aus nordischer Fichte naturbelassen mit 4-fach Eckausfräsung
    • Massivholz-Dach aus 18mm starken Nut- und Federbrettern
    • extra starke Dachkonstruktion auch für höhere Schnee- und Windlastzonen geeignet
    • Massivholz-Fußboden aus 18mm starken Nut- und Federbrettern inkl. Fußleisten
    • imprägnierte Fundamentbalken als Unterkonstruktion
    • imprägnierte Terrassenbretter im Außenbereich
    • 1x extra hohe Doppeltür mit Leimholzrahmen (200 cm Durchgangshöhe)
    • hochwertige Türdrücker mit PZ-Schloß inkl. 3 Schlüsseln
    • hochwertige Edelstahltürschwelle für den leichten Einstieg
    • 1x hochwertige bodentiefe Einzelfenster feststehend
    • 2x hochwertige Rundfenster feststehend
    • Verglasung der Türen und Fenster aus Isolierglas
    • Gummidichtungen bei Türen 
    • 2x hochwertiges Lamellen Sichtschutzgitter
    • patentierte Windsicherung auf der Innenseite
    • hochwertiges Montagematerial & Aufbauplan
    • ohne Dacheindecku

    Fjordholz Gartenlounge Modell York 44 aus Holz als Bausatz oder schlüsselfertig ✓ Direkt vom Hersteller ✓ 5 Jahre Garantie ✓ Kauf auf Rechnung ✓ Gratis Versand ✓

✿ Hier mit Rabatt kaufen! ✿

Beschreibung

* 26 % Rabatt ! *
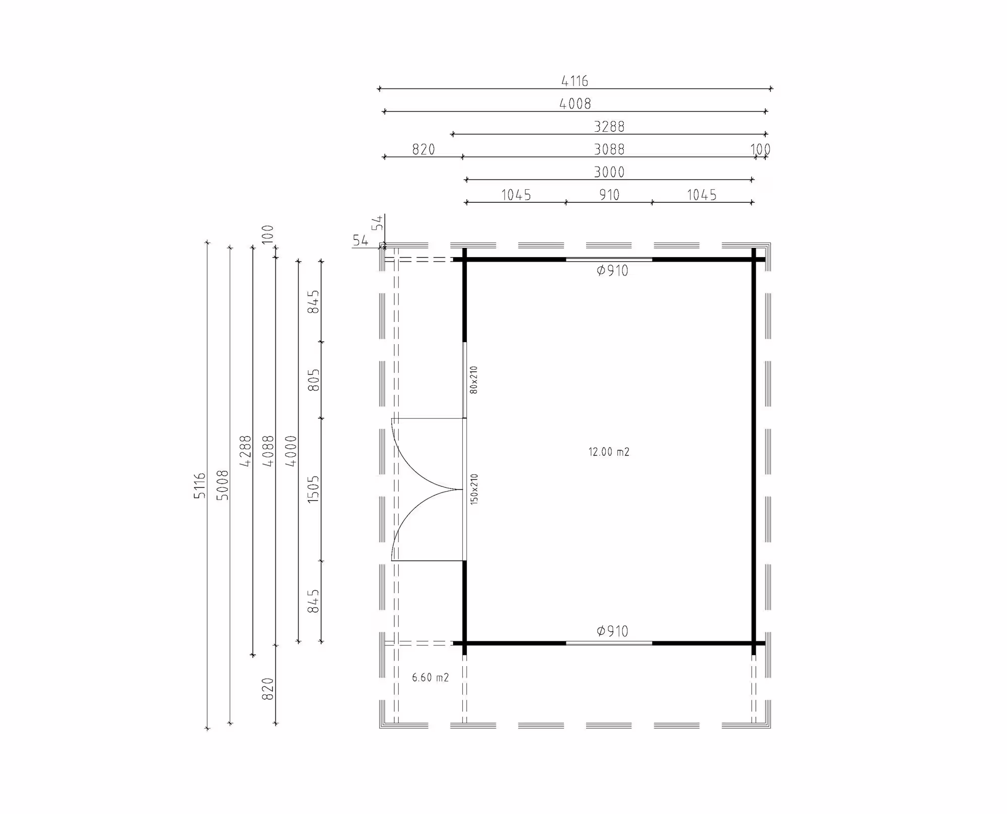
5x3m (15m²) Grundfläche (grob)

Fjordholz Gartenlounge Modell York 44| Rabatt: 26%|5x3m
  • ✔️ Wandstärke: 44mm
  • ✔️ Material: Fjordholz, nordische Fichte
  • ✔️ Dach aus 18mm starken Nut- und Federbrettern
  • ✔️ Durchgangshöhe der Doppeltür: 200 cm
  • ✔️ Isolierglas in Türen und Fenstern
  • ✔️ Fundamentbalken und Terrassenbretter imprägniert
  • ✔️ 2 Räume: Hauptraum und kleinerer Raum
  • ✔️ Hochwertige Edelstahltürschwelle
  • ✔️ Extra starke Dachkonstruktion
  • ✔️ Gummidichtungen bei Türen

Fjordholz Gartenlounge Modell York 44: Ihr perfektes Gartenhaus

Erleben Sie die Kombination aus skandinavischem Design und Funktionalität mit der Fjordholz Gartenlounge Modell York 44. Gefertigt aus massiven 44mm starken Wandbohlen aus nordischer Fichte, bietet dieses Gartenhaus nicht nur Stabilität, sondern auch eine natürliche Ästhetik. Die 18mm starken Nut- und Federbretter des Dachs und Bodens gewährleisten eine robuste Konstruktion, die selbst für höhere Schnee- und Windlastzonen geeignet ist.

Die Doppeltür mit einer Durchgangshöhe von 200 cm ermöglicht einen bequemen Zugang, während die Verglasung aus Isolierglas für eine gute Wärmeisolierung sorgt. Die imprägnierten Fundamentbalken und Terrassenbretter schützen das Holz vor Feuchtigkeit und verlängern die Lebensdauer der Struktur erheblich.

Dieses Gartenhaus bietet zwei separate Räume, die vielfältige Nutzungsmöglichkeiten eröffnen. Ob als gemütlicher Rückzugsort, Büro oder Hobbyraum – die Nutzungsmöglichkeiten sind nahezu unbegrenzt. Die patentierte Windsicherung auf der Innenseite sorgt für zusätzliche Stabilität.

Dank des optionalen Aufbauservices können Sie sich entspannt zurücklehnen, während Ihr neues Gartenhaus schnell und fachgerecht errichtet wird. Wählen Sie Ihre Wunschfarbe und gestalten Sie Ihr Gartenhaus ganz nach Ihren Vorstellungen.

Die Fjordholz Gartenlounge Modell York 44 ist mehr als nur ein Gartenhaus – es ist ein Stück Natur in Ihrem Garten, das Funktionalität und Design harmonisch vereint.

 

Diese Seite verwendet Cookies, um die Nutzerfreundlichkeit zu verbessern. Mit der weiteren Verwendung stimmst du dem zu.

Datenschutzerklärung